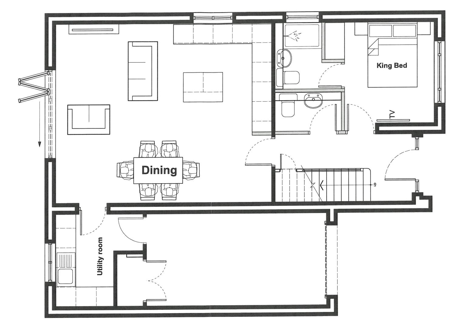
Currently under construction and available for reservation, we are pleased to offer this 3/4 bedroom home in this popular, established, residential area. The accommodation is set over two floors and is extremely versatile with single storey living possible if needed.
Vendor advises a JKW eradication programme is in place. Further details available.
Full List of Specification available
SPECIFICATION
Kitchen
Solid state counter-tops
Undermount sink
Custom kitchen joinery (colour options available)
Built-in dishwasher, integrated oven, fridge freezer and larder unit,
Kitchen island, induction hob, extractor hood
Bathroom & Ensuites
Contemporary designed bathrooms.
Fully tiled walls to first floor bathrooms
White Sanitaryware
INTERNAL FINISHES
Solid oak doors with chrome ironmongery finishes
White painted architraves and skirting boards throughout
Staircase with oak handrail and oak newel posts
Choice of carpet available to stairs, landing and bedrooms
Choice of luxury vinyl flooring to ground floor level
DECORATION
White or similar vinyl matt emulsion finish to all walls
White satinwood finish to all woodwork
All ceilings smooth painted white, square edge corners
HEATING, ELECTRICAL & LIGHTING
Thermally efficient combi boiler gas central heating
Under floor heating system throughout ground floor level
Radiators to first floor level
Heated towel radiator to bathroom and ensuite
Generous number of double electrical sockets to each room
Front and rear external lighting
Spotlights throughout ground and first floor level
Sprinkler system
EXTERNALLY
'Anthracite' modern Marley roof tiles
Timber effect cladding to front elevation
Smooth fine-down render in painted finish
Outside tap
DOORS, WINDOWS, FASCIAS & SOFFITS
Front entrance composite door in 'anthracite grey' with chrome ironmongery and interlocking system
Bi-folding door system in powder coated aluminium, 'anthracite grey' external and 'white' internal
EXTERNAL
Lawned rear with close boarded fence
