We are pleased to offer for sale this end-terrace property, ideally located in the highly sought-after area of Manselton, Swansea.
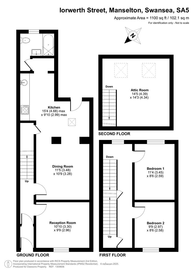
The ground floor accommodation comprises an entrance porch, hallway, lounge, separate dining room, kitchen, inner hallway, and bathroom. To the first floor, you’ll find two bedrooms, with an additional attic room on the second floor—offering flexible space ideal for a study, guest room, or storage.
Externally, the property benefits from an enclosed rear garden, perfect for relaxing or entertaining.
Ideally situated close to local schools and amenities, this home also offers excellent transport links to Swansea City Centre, Morfa Retail Park, and the Swansea.com Stadium.
An ideal first-time buy or investment opportunity. Viewing is highly recommended to appreciate the potential this property has to offer.
Services: Mains Gas & Electric
Mains Sewerage
You are advised to refer to the Ofcom checker for information regarding mobile signal and broadband coverage, as, due to the property being vacant, we cannot confirm availability.
N.B: "Buyers are advised to contact the local authority regarding parking permit availability and costs
