Yew Tree Cottage is a much-loved, exquisite family cottage nestled in the heart of Reynoldston, Gower. This calm and tranquil location is a stone’s throw away from the Gower countryside, footpaths and a few minutes’ drive from the famous beaches Rhossili, Oxwich and Llangennith. This beautiful 4-bedroom detached home boasts charm/character through-out and patiently awaits someone to seize the opportunity and make their own.
Freehold, Tax Band - G, Electric, Calor Gas Bottles, Mains Drainage.
: You will be impressed from the moment you arrive in this sought after, community spirited Gower village, there is much to admire as you approach this gorgeous property. Nature enthusiasts will delight in the proximity to the stunning Gower Peninsula, a designated Area of Outstanding Natural Beauty. The village also offers convenient access to a variety of amenities, including quaint shops, local pubs, and excellent schools.
Let us explore this beautiful home in more detail…
Approach: After meandering down a quiet country road and passing through a double iron gate, you will be greeted by this remarkable village house. Here, you can take advantage of the off-road parking space for one car, and the paved courtyard will lead you into this impressive family home. For a more adventurous approach, the house can also be reached via the picturesque drive over Cefyn Bryn. As the road climbs up the open moorland, offering panoramic views of the surrounding landscape, you may catch sight of graceful wild horses and grazing cattle. Continuing along the ascent, the road eventually reaches the summit of Cefyn Bryn, where Reynoldston lies nestled at the bottom of the hill, beckoning you to explore its charming village atmosphere.
Step Inside…
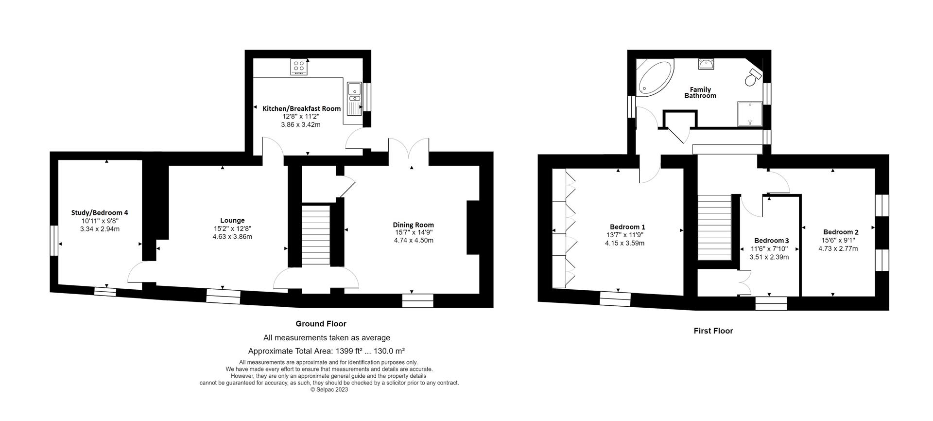
Kitchen/Breakfast Room: 3.86 x 3.42 (12'7" x 11'2") Step into the warm embrace of a charming cottage-style kitchen/breakfast room that offers a delightful blend of functionality and character. The large window which frames the courtyard, floods the room with abundant natural light. This inviting space showcases a range of wall & base units, tiled flooring, exquisite feature ceiling beams, double porcelain sink with drainage, complemented by a swan tap. The Kitchen is also equipped with an integrated Bosch oven/grill, 4-ring electric hob, elevated extractor fan, room to accommodate two under-counter appliances and one freestanding appliance. To complete this welcoming space, there is ample room for a generous breakfast table where you can enjoy leisurely mornings filled with delicious meals.
Lounge: 4.63 x 3.86 (15'2" x 12'7") Journey from the kitchen to the lounge through a charming latch door, which awaits just a step below. The room boasts character/charm and features a stunning multi-fuel burner nestled within a beautiful stone surround and hearth. This space also enjoys a window to the front, ceiling beams, laminate flooring, and offers a generous area for relaxation and entertainment. From here, you have convenient access to the study/bedroom four, and inner hallway guiding you towards the dining room and stairway leading to the first floor.
Study/Bedroom 4: 3.34 x 2.94 (10'11" x 9'7") Connected to the lounge, you'll find a versatile room that can be transformed into a delightful study, bedroom, playroom, or whatever you desire. This space offers carpeting and dual aspect windows that allow abundant natural light to fill the room, creating a bright and uplifting environment.
Dining Room: 4.74 x 4.50 (15'6" x 14'9") Natural light floods into the generous dining room, thanks to the window at the front, and double French doors lead out to the courtyard, seamlessly merging indoor and outdoor spaces for delightful gatherings. The space features laminate flooring, half cladded walls, coving, fitted shelving and an open feature fireplace provides a cosy focal point. Additionally, a useful storage cupboard is available, offering a convenient space to keep dining essentials within reach.
Let us now ascend the carpeted stairway to the first floor of this unique home.
Landing: The split-level, carpeted landing offers you access to three bedrooms, a family bathroom, and a spacious airing cupboard. The airing cupboard is thoughtfully fitted with shelving, offering ample storage space, as well as room to accommodate an appliance. Here you also have a window to the side allowing lots of natural light.
Bedroom Three: 3.51 x 2.39 (11'6" x 7'10") Situated to the front of the home with a window allowing natural light. This lovely double bedroom is laid with carpet and enjoys a large built-in wardrobed fitted with a hanging rail and shelving.
Bedroom Two: 4.73 x 2.77 (15'6" x 9'1") Another Generous double room which has the pleasure of carpeted flooring, two windows to the side and ample room for a seating/dressing area.
Family Bathroom: The family bathroom is fully equipped with a WC, wash basin, fitted corner bath with jacuzzi jets, walk-in shower, fully tiled, spotlighting, extractor fan, and two frosted windows.
Bedroom One: 4.15 x 3.59 (13'7" x 11'9") Step into the vibrant bedroom one, where natural light pours in through the front-facing window. This room has ample space for a seating or dressing area, allowing you to create your personal retreat within the room. The room boasts wooden flooring and an array of large wardrobes with fitted hanging rails and shelving.
Step Outside...: Yew Tree Cottage offers a delightful garden that spans across two tiers, inviting you to explore its natural beauty. The lower tier features a charming courtyard patio area, perfect for outdoor relaxation. Raised flower beds adorned with a variety of plants and shrubs add colour and texture to the landscape, creating a picturesque setting. The garden is enclosed, providing a sense of privacy and tranquillity. Accessible via steps, the upper tier reveals a lush lawn area, inviting you to bask in the serenity of nature. A designated patio area offers a space for seating, allowing you to fully immerse yourself in the enchanting surroundings, while enjoying the soothing sounds and captivating sights of nature.
Local Area: This sought-after hamlet in Reynoldston is home to one of the finest bar and restaurant, The King Arthur Hotel and close proximity to coastal paths ensuring the area is very desirable with families and has a friendly community feel. Within the village of Reynoldston there is a local post office/shop and a bus service which gives you access to all over the Gower and into The City of Swansea.
Situated in the heart of the Gower Peninsula with woodland walks and array of sandy beaches offering an outstanding coastline with many majestic beaches and interesting coves to explore. Famed for becoming Britain’s first designated Area of Outstanding Natural Beauty and popular with locals and tourists alike. With rugged coastal walks and large expanse of family friendly, sandy beaches, coastal shops and beachside cafes. The award-winning beaches of Three Cliffs and Rhossili are within easy reach and the Gower Peninsula itself is also blessed with Norman and Tudor Castles, Medieval Churches, Heritage Centres and family run pubs and restaurants which attract loyal patrons from far and wide. Cefyn Bryn is a 600-foot hill located just a few minutes' walk from Yew Tree Cottage where you can enjoy extensive walks, sights of nature and much more. From its vantage point, you can enjoy sweeping 360-degree views of the breath-taking Gower Peninsula.
The North Gower coast is a breath-taking natural treasure, boasting a diverse and enchanting landscape. Its salt marshes, blanketed with vibrant vegetation, create a rich and thriving ecosystem. The extensive sand dune system stretches along the shoreline, sculpted by the ceaseless rhythm of the tides. This dynamic environment is home to a plethora of rare plants, their delicate blossoms adding splashes of colour to the sandy expanse. Amongst the dunes and marshes, a myriad of wildlife finds refuge, including elusive species like the Natterjack toad and the Gower Peninsula's iconic wild ponies. Exploring the North Gower coast is a journey into a world where nature's beauty and biodiversity intertwine harmoniously.
The absolutely charming coastal village of Mumbles is just a short distance away and is located to the west of The City of Swansea. The village itself offers a full array of quality restaurants and individual boutiques with beachside promenade that meanders along the coast with coffee shops, parks and ice cream parlours en route. Alongside our award-winning beaches, scenic coastal paths and Marina we are blessed with great sporting facilities. With championship golf courses, Olympic sized swimming pool and full array of water sports, horse riding and outdoor recreational activities are available.
Additional Property Information: Freehold
Tax Band - G
Electric
Calor Gas Bottles
Mains Drainage
